AFFORDABLE, EQUITABLE HOUSING FOR SAN FRANCISCO
The typical townhouse typology utilizes the corridor to delineate the service from the served spaces. Functional necessities of light, air, and circulation are sequestered outside the main domain of living. In an effort to subvert that social organization, this proposal flips the townhouse inside out, celebrating the circulation between spaces. In our proposal, the light and air shaft become the living room, creating a communal patio and terraces.
Partner work with Elaina Berkowitz
Critics: Pier Vittorio Aureli + Emily Abruzzo | Spring 2017
A FAST-TRACKED, HIGH-IMPACT MEDICAL SCHOOL FOR WOMEN
The Niragire Medical School provides a fast-track program for women to obtain healthcare degrees in a setting that provides substantial interaction with the local community. This achieves three goals: it provides the community with a clinic and outreach programs, gives students immediate experience with real patients, and increases the visibility of women as healthcare professionals. To that end, three distinct courtyard buildings - one each for prevention and public health, clinical care, and research - are linked by a public ground floor that is open to doctors, students, and the community.
Contextual Research and Mission Statement Developed with Stephanie Medel
Final Design Developed Individually
Critics: Alan Ricks + Nicholas McDermott | Spring 2018
AN INSTALLATION CELEBRATING SEČOVLJE’S HISTORICAL SALT-PANS
Salt Mantle speaks to the past, present, and future condition of the Sečovlje Salina Nature Park and the irony of salt itself. As salt is both a preservative and a corrosive, Salt Mantle creates a collage of this incongruent mineral. Firstly, it symbolizes preservation: the mantle creates shelter, frames the ruin, and draws attention to the preservation concern. It furthermore creates a dialogue between the cultural heritage of the salt-pan house and the contemporary materiality of CLT. It drapes over the ruin, shingled to reference the park’s salt-pan fields. The CLT is mineral stained black and stands in stark contrast to the historic fabric. Over time, as saltwater and saline air interact with the darkened CLT - the wood bleaches, warps, and crusts, manifesting the effects of the environment on the houses themselves. This demonstrates the corrosive quality of salt. Immediately after construction, the piece stands in stark contrast to the landscape as the focus of attention. Yet over time, it becomes apparent that the true protagonist is the landscape as it slowly takes over, causing the two entities to blend into one.
Partner work with:
Ursula EmeryMcClure
Jenna Jordano
Brooke Neal
Competition for Salt-Pan House Installation in Piran, Slovenia, hosted by Outsider | January 2020
An installation promoting ecological building materials and inclusive land-use development
Soil is the element that binds all terrestrial life together; as such it is the basis for Living Walls. It promotes using earth as a building material and encourages the inclusion of plants, animals, insects, fungi, and microorganisms into the design of our built environment. Rather than push these species to neglected urban spaces, we can give them intentional homes that celebrate our interdependence and their role in our shared ecosystem. Living Walls creates a space for introspection and discussion - for humans and their nonhuman counterparts. The structure consists of concentric semicircles that orbit a solid core. Emanating out, each layer of rings provides a home to various species endemic to the area. Compacted-earth benches are integrated throughout the entire installation. This gives humans a place to sit and socialize amongst themselves as well as with other species. This broadens the conversation about land-use and land development. It argues that there are other non-human voices that must be considered. In addition to reducing waste and emissions, we must create a home for the other species that are part of our shared urban ecology.
Competition boards for installation in Ljubljana, Slovenia | hosted by Outsider November 2021
CARRIE MCCRAKECN T.R.U.C.E. COMMUNITY GARDEN | HARLEM
This project started with a derive through Harlem. From this, data was collected and then translated into model and drawing forms. The resultant iterative forms tell the story of this translation process.
Critics: Babak Bryan + Marina Otero | summer 2013
Ornamental Unit Analysis
Critics: Sunil Bald + Kent Bloomer | Fall 2014
Unfolded Axonometric Analysis
Critics: John Blood + John Eberhart | Summer 2015
Helix + Infinite Periodic Minimal Surface
Critics: Sunil Bald + Kent Bloomer | Fall 2014
Peter Eisenman's Formal Analysis Drawing Competition
Winning Design
Critics: Peter Eisenman + Miroslava Brooks | Fall 2014
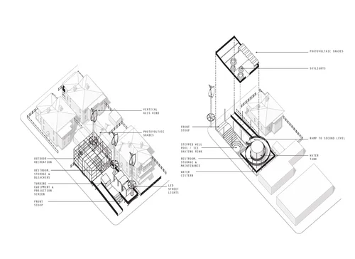
DECENTRALIZED RESOURCES = IMPROVED RESILIENCY
Bridgeport, like many other coastal cities, is vulnerable to severe storm surges. Our proposal seeks to provide water and energy resource micro centers that harness energy as a redundant network apart from the main grid. When the platforms are not needed for emergencies, they provide community recreational spaces.
Partner work with Cecily Ng
Critic: Rosalyne Shieh | Spring 2016
M. GRAVES COLLEGE OF DESIGN
KEAN UNIVERSITY | UNION, NEW JERSEY
This pedagogical project emphasizes the progression of general to specific knowledge. This is expressed in the building as the design studios become increasingly fragmented in plan, with programmatic elements sliding out from its core, reaching out to other campus buildings.
Critic: Emily Abruzzo | Fall 2015
The terms public and private are often used in a binary sense. A space is one or the other.This scheme is based on the conceptual basis that this condition is not either/or, but a gradient. This schemes uses architectural layers to provide different social zones from the front façade to the back courtyard.
Team work with:
Wilson Carroll
Casey Furman
Cecilia Hui
Hannah Novack
Andrew Padron
Ilana Simhon
Critics: Trattie Davies + Adam Hopfner | Spring 2015